- « Poprzedni
- Następny »
- Oznacz jako nowe
- Zakładka
- Obserwuj
- Wycisz
- Subskrybuj źródło RSS
- Wyróżnij
- Drukuj
- Zgłoś
Zaplanowanie sieci w mieszkaniu
Dzień dobry, Zwracam się z prośbą o poradę. Niedługo będę przenosił usługi internetowe do nowego mieszkania. Mieszkanie będzie duże (ponad 100m^2) i będą w nim 4 pokoje. Zależy mi na jak najlepszym zasięgu i prędkości internetu w każdym z nich. Na stałe do Wifi podpięte będzie kilkanaście urządzeń. Na razie, deweloper zaplanował skrzynkę TSM (prawdopodobnie na wpięcie terminala GPON) oraz jedno gniazdko RJ45 (prawdopodobnie na router). Stąd pojawiają się moje pytania:
1) czy jeden router będzie w stanie zapewnić odpowiedni zasięg na takiej powierzchni?
2) jeśli nie, to jakie rozwiązanie zastosować? drugi router czy może mesh? czy w takim przypadku zalecane byłoby poprowadzenie kabla w inną część mieszkania i podpięcie nim urządzenia typu AP?
3) obecnie posiadam usługę Mini Światłowód do 300Mb - czy powinienem ją rozszerzyć?
- Oznacz jako nowe
- Zakładka
- Obserwuj
- Wycisz
- Subskrybuj źródło RSS
- Wyróżnij
- Drukuj
- Zgłoś
Zaplanowanie sieci w mieszkaniu
@markotny wychodzę z założenia że to "zwykła deweloperka" wiec pewnie skrzynka będzie w korytarzu zaraz jak się wchodzi do mieszkania. standardowo robią jedno wyjście ethernet do salonu chyba że zgłaszałeś predzej do dewelopera chęć gniazdka RJ w każdym pomieszczeniu. w skrzynce bedzie gniazdo optyczne. w takim układzie masz dwa rozwiązania albo router zostawiasz w skrzynce albo ONT i stawiasz w salonie. jeżeli korzystasz bezprzewodowo to wiadomo że najlepiej ustawić router w miejscu centralnym albo wspomagać sie repeater`em czy też stawiasz AP. FB 3 czy ogarnie 100m? może i tak ale na jakim poziomie bedzie ten zasięg sam musisz sprawdzić.
to jest wlasciwie jeden przykład bo są jeszcze inne przypadki np ustawienie gniazda optycznego w innym miejscu ale to sie robi głownie przed wykończeniem/remontem mieszkania
- Oznacz jako nowe
- Zakładka
- Obserwuj
- Wycisz
- Subskrybuj źródło RSS
- Wyróżnij
- Drukuj
- Zgłoś
Zaplanowanie sieci w mieszkaniu
Trochę za późno na plany, skoro nie da się już położyć kabli.
- Oznacz jako nowe
- Zakładka
- Obserwuj
- Wycisz
- Subskrybuj źródło RSS
- Wyróżnij
- Drukuj
- Zgłoś
Zaplanowanie sieci w mieszkaniu
Dziękuję za odpowiedź. Rozumiem, że w takim razie nie ma sensu ciągnąć kabla do zadnego pokoju i postawić na router plus ewentualnie repeater bezprzeowodowo?
- Oznacz jako nowe
- Zakładka
- Obserwuj
- Wycisz
- Subskrybuj źródło RSS
- Wyróżnij
- Drukuj
- Zgłoś
Zaplanowanie sieci w mieszkaniu
Najsensowniej jest zawsze mieć kabel w każdym pokoju. Kable te powinny się zbiegać do miejsca gdzie będzie stał ruter. Bez znajomości topologii lokalu i planów np. dotyczących rozmieszczenia urządzeń takich jak dekoder tv czy komputery stacjonarne to wszelkie rady będą irracjonalne. Połączenie bezprzewodowe to zło. Czasem konieczne, ale zło.
- Oznacz jako nowe
- Zakładka
- Obserwuj
- Wycisz
- Subskrybuj źródło RSS
- Wyróżnij
- Drukuj
- Zgłoś
Zaplanowanie sieci w mieszkaniu
@markotnynapisał(-a)Dziękuję za odpowiedź. Rozumiem, że w takim razie nie ma sensu ciągnąć kabla do zadnego pokoju i postawić na router plus ewentualnie repeater bezprzeowodowo?
jeżeli masz jeszcze możliwość położenia kabli to zrób to.
pytanie co chcesz podłączyć?
- Oznacz jako nowe
- Zakładka
- Obserwuj
- Wycisz
- Subskrybuj źródło RSS
- Wyróżnij
- Drukuj
- Zgłoś
Zaplanowanie sieci w mieszkaniu
@markotny takiej powierzchni nie pokryjesz jednym nadajnikiem. Wszystko zależy od tego gdzie chcesz postawić modem z routerem ( Funbox)
Ważne jest to czy masz możliwość dociągnięcia światłowodu do miejsca w centralnym punkcie mieszkania i czy tam będzie IPTV( jeśli przewidujesz).
Czy są rurki pod podłogą i czy jest możliwość ułożenia kabli.
Sieć planuje się w miarę potrzeb i im więcej kabli, tym prościej, szybciej i bezpieczniej.
Musisz przewidzieć sieć od FB do przyszłych stanowisk w pokojach i ewentualnie punktów dostępowych wifi.
Minimum po 2 kable Ethernet kategorii minimum 5e.
Trzeba to dobrze zaplanować, ale nie można w ciemno...
Dlatego sieć ma zależności, które determinują jej ułożenie
- Oznacz jako nowe
- Zakładka
- Obserwuj
- Wycisz
- Subskrybuj źródło RSS
- Wyróżnij
- Drukuj
- Zgłoś
Zaplanowanie sieci w mieszkaniu
@markotny Przed lub na etapie układania podłóg poprowadzić przewody wzdłuż ścian (można podkuć je na styku z podłogą), porobić przewierty. U siebie gniazda dołożyłem obok elektrycznych i są z nimi w jednej ramce ale to wymaga dewastacji ściany. Największym problemem jest sensowne zebranie tych wszystkich przewodów w jednym miejscu bo będzie ich dużo. Należy zapewnić miejsce na przełącznik. Router można wtedy podłączyć po eth (potrzebne dwa gniazda) w innym pomieszczeniu a do skrzynki dać ONT. Inną opcją jest puszczenie przewodów w listwach przypodłogowych i montaż gniazd naściennych w mniej widocznych miejscach, kwestia estetyki.
PS. Jak wystarcza ci 300 to nie zmieniaj albo przejdź do nju.
- Oznacz jako nowe
- Zakładka
- Obserwuj
- Wycisz
- Subskrybuj źródło RSS
- Wyróżnij
- Drukuj
- Zgłoś
Zaplanowanie sieci w mieszkaniu
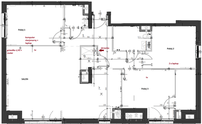
Tak wygląda topografia mieszkania w stanie od dewelopera.
Router mogę umiejscowić zaraz obok skrzynki, czyli centralnie, ale wtedy będzie otoczona ścianami ze wszystkich stron lub w salonie - co będzie lepsze?
Rozumiem, że dodatkowe kable do poszczególnych pokoi mają się zbiegać do położenia routera?
W pokojach planuję dać wzmacniacze sygnału podpięte do nowych kabli.
"Należy zapewnić miejsce na przełącznik." - o jakim przełączniku mowa?
- Oznacz jako nowe
- Zakładka
- Obserwuj
- Wycisz
- Subskrybuj źródło RSS
- Wyróżnij
- Drukuj
- Zgłoś
Zaplanowanie sieci w mieszkaniu
@markotny https://allegro.pl/listing?string=przełącznik%20sieciowy%20%2F%20switch
Mają się zbiegać do wspólnego miejsca, najlepiej do skrzynki. Będzie w niej miejsce aby wcisnąć mały switch + ONT. Router pewnie się już nie zmieści. Można go wtedy dać po skrętce do salonu (tam gdzie zaznaczyłeś) a pokoje po prawej obsłużyć bezprzewodowo za pomocą dodatkowego AP (nie wzmacniacza) umieszczonego w korytarzu na styku drzwi. Dać go na przykład na podwieszanym suficie i zasilić przez PoE.
- « Poprzedni
- Następny »