- « Poprzedni
-
- 1
- 2
- Następny »
- Oznacz jako nowe
- Zakładka
- Obserwuj
- Wycisz
- Subskrybuj źródło RSS
- Wyróżnij
- Drukuj
- Zgłoś
Sens podłączenia drugiego routera pod Funbox 2.0
Cześć,
Posiadam router Asus RT-AX88U, którego kupiłem z zamiarem użycia w przyszłości w dopiero co budowanym domu. Aktualnie na mieszkaniu mam Funbox 2.0 z łączem VDSL Neostrada 80Mbit (światłowód tu nie dochodzi). Zastanawiam się czy warto podłączyć do Funbox'a router Asus RT-AX88U i nim sterować całą siecią? A jeśli tak to jak mogę to zrobić? Ogólnie nie mam jakiś większych problemów z FB, chociaż zauważam że w skrajnych pokojach (mieszkanie 65m2) czasem zasięg wifi jest gorszy. Z drugiej strony jak mam tak dobry router to mógłbym go już jakoś wykorzystać.
To co posiadam aktualnie podłączone do FB to:
- komputer stacjonarny - LAN,
- serwer NAS - LAN,
- Android TV - LAN,
- laptop - WiFi,
- 2 telefony i kilka urządzeń smart - WiFi.
Czy jest sens podłączać drugi router i pod niego te wszystkie urządzenia w tej samej konfiguracji, by polepszyć jakość połączeń, możliwość zarządzania nimi, itp. czy jednak sprawi to więcej kłopotów?
Domyślam się, że jak ASUS nie ma wejścia VDSL to nie ma jak całkowicie zrezygnować z FB i korzystać tylko z Asusa?
Z góry dzięki 🙂
- Oznacz jako nowe
- Zakładka
- Obserwuj
- Wycisz
- Subskrybuj źródło RSS
- Wyróżnij
- Drukuj
- Zgłoś
Sens podłączenia drugiego routera pod Funbox 2.0
@Zeuskk jeżeli potrzebujesz poprawić zasięg WiFi, to podłączenie kolejnego routera ma sens. Jak obecną sieć jest wystarczająca do pokrycia WiFi, to drugi router jest nie potrzebny, no chyba, że jest potrzeba do szkolenia się i przetestowania drugiego routera w sieci. Są różne konfigurację drugiego routera, np jako AP klient, wtedy wszystkuecustawienia przedłuża z FunBox-a, albo jako drugi NAT, wtedy masz niezależną drugą podsieć.
- Oznacz jako nowe
- Zakładka
- Obserwuj
- Wycisz
- Subskrybuj źródło RSS
- Wyróżnij
- Drukuj
- Zgłoś
Sens podłączenia drugiego routera pod Funbox 2.0
Właśnie z chęcią bym polepszył zasięg WiFi i się przy okazji podszkolił i czegoś nowego nauczył, na przyszłość w domu już bym wiedział co i jak sprawnie skonfigurować. W moim przypadku jaką konfigurację drugiego routera byś polecił? Fajnie jakby to było maksymalnie kompatybilne z serwerem NAS w mojej sieci i jego widocznością i dostępnością dla innych urządzeń.
- Oznacz jako nowe
- Zakładka
- Obserwuj
- Wycisz
- Subskrybuj źródło RSS
- Wyróżnij
- Drukuj
- Zgłoś
Sens podłączenia drugiego routera pod Funbox 2.0
@Zeuskk najlepiej ustawić AP klient na drugim routerze, ale pamiętaj o wyłączeniu DHCP. Jako AP przejmuje ustawienia FB i rozsyła dalej najlepiej oba routery podpiąć kabelkiem, wejście LAN w FB do WAN w drugim routerze.
- Oznacz jako nowe
- Zakładka
- Obserwuj
- Wycisz
- Subskrybuj źródło RSS
- Wyróżnij
- Drukuj
- Zgłoś
Sens podłączenia drugiego routera pod Funbox 2.0
@Zeuskk wszystko zależy od tego jaki zasieg mają oba urządzenia stojąc obok siebie. Stosowanie kaskady routerów jest raczej mało sensowne. Lepiej już drugi w szeregu postawić w trybie Access Point i pokryć mieszkanie dwoma punktami dostępu doświetlając każde miejsce lokalu. Ma to wadę, bo tracisz tryb SMART.
- Oznacz jako nowe
- Zakładka
- Obserwuj
- Wycisz
- Subskrybuj źródło RSS
- Wyróżnij
- Drukuj
- Zgłoś
Sens podłączenia drugiego routera pod Funbox 2.0
No właśnie u mnie to wygląda tak, że w ostatnim najmniej użytkowanym pokoju mam schowany serwer NAS który jest podpięty do UPS (często pada prąd tu na wiosce). W środku mieszkania w przedpokoju mam gniazdko telefoniczne do którego jest podpięty FB. Myślałem, żeby FB postawić przy serwerze i podpiąć go również do UPS, pociągnąć kabel telefoniczny do UPS, bo mam w nim filtr przeciwprzepięciowy z wtykiem rj11 i do FB. No i w taki sposób zabezpieczam FB, bo z tego co się orientuję to takie awarie prądu źle na niego wpływają i często pogarszają parametry sieci (?). I właśnie od niego pociągnąć LAN do ASUS'a którego postawiłbym w przedpokoju na dawnym miejscu FB. I tak jak sugerujecie użyć go wtedy jako AP. Czy to dobry pomysł?
- Oznacz jako nowe
- Zakładka
- Obserwuj
- Wycisz
- Subskrybuj źródło RSS
- Wyróżnij
- Drukuj
- Zgłoś
Sens podłączenia drugiego routera pod Funbox 2.0
@Zeuskk tak to dobry pomysł.
W konfiguracji Asus jest opcja punkt dostępu, ustawiasz i nic nie trzeba konfigurować, poza wi-fi siecią, kabel lan od portu lan FunBox, do portu wan Asus, 😎
- Oznacz jako nowe
- Zakładka
- Obserwuj
- Wycisz
- Subskrybuj źródło RSS
- Wyróżnij
- Drukuj
- Zgłoś
Sens podłączenia drugiego routera pod Funbox 2.0
@Zeuskk przeciągnięcie linii dodatkowej i przestawienie modemu, to dodatkowe tłumienie i zmniejszenie przepustowości linii. Niby niewielkie, ale zawsze. Lepiej przeciągnij kabel eth i załóż tam AP ze switchem i podłącz ten NAS. Bezpieczniej...
Według mnie mając VDSL nie masz czym szastać z przepustowością, aby tracić na wifi
Poza tym Twój pomysł zmusza do pociągnięcia 2 kabli...mój 1
- Oznacz jako nowe
- Zakładka
- Obserwuj
- Wycisz
- Subskrybuj źródło RSS
- Wyróżnij
- Drukuj
- Zgłoś
Sens podłączenia drugiego routera pod Funbox 2.0
@agat13dobrze rozumiem, że mam ASUSa jako AP postawić przy serwerze w ostatnim pokoju, a FB zostawić tam gdzie był i tylko pociągnąć od niego ethernet do AP?
Edit:
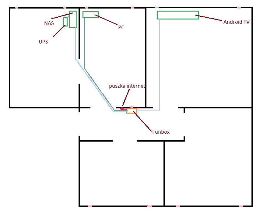
A tak w uproszczeniu wygląda rozkład mieszkania i urządzeń. To jest stare budownictwo, więc kontakty tylko pod oknami więc nie mam jak szaleć z umieszczaniem urządzeń, a przedłużaczy i tak już sporo. UPS musi być przy NAS, a chciałbym pod niego w miarę możliwości podpiąć również FB i z linią telefoniczną przez UPS na wypadek awarii prądu i przepięć, a tutaj migania potrafi być sporo więc boję się o FB.
- Oznacz jako nowe
- Zakładka
- Obserwuj
- Wycisz
- Subskrybuj źródło RSS
- Wyróżnij
- Drukuj
- Zgłoś
Sens podłączenia drugiego routera pod Funbox 2.0
@Zeuskk Ja to widzę tak: Można przenieść modem. Konieczna wtedy by była przeróbka linii telefonicznej na pokój z NAS-em. Nie wiem którędy linia wchodzi do lokalu, więc trudno mi powiedzieć jakie byłyby możliwości zachowania jej długości w stanie niezmienionym (wykonania instalacji od nowa znad drzwi wejściowych od razu do pokoju z NAS, bez przedłużania od obecnego gniazda). Jeśli taka przeróbka wchodzi w grę, to wtedy bym się zastanowił nad takim scenariuszem. Później od modemu podciągnąłbym jedna nitkę do przedpokoju do AP , drugą do kompa za ścianą, a trzecią do TV kładąc kable pod oknami wzdłuż jednej ściany. Łatwo i bezkonfliktowo.
Jeśli nie chcesz takiej rewolucji (co wydaje mi się najrozsądniejsze) możesz zostawić modem tam gdzie jest i podciągnąć jedną nitkę do NAS-a, założyć AP ze switchem. Od switcha zrobić instalację do kompa za ścianą i do TV wykonując ją jak opisałem poprzednio wzdłuż ściany, po listwie przypodłogowej.
Nie widzę całości mieszkania, grubości ścian i ewentualnych przeszkód, więc to jest plan w ciemno...
- « Poprzedni
-
- 1
- 2
- Następny »